A 44

24,5 m²

1h+kk

Sijaintikerros 5
Myyntihinta 65 874 €
Velaton hinta 145 860 €
Varaustilanne Myyty

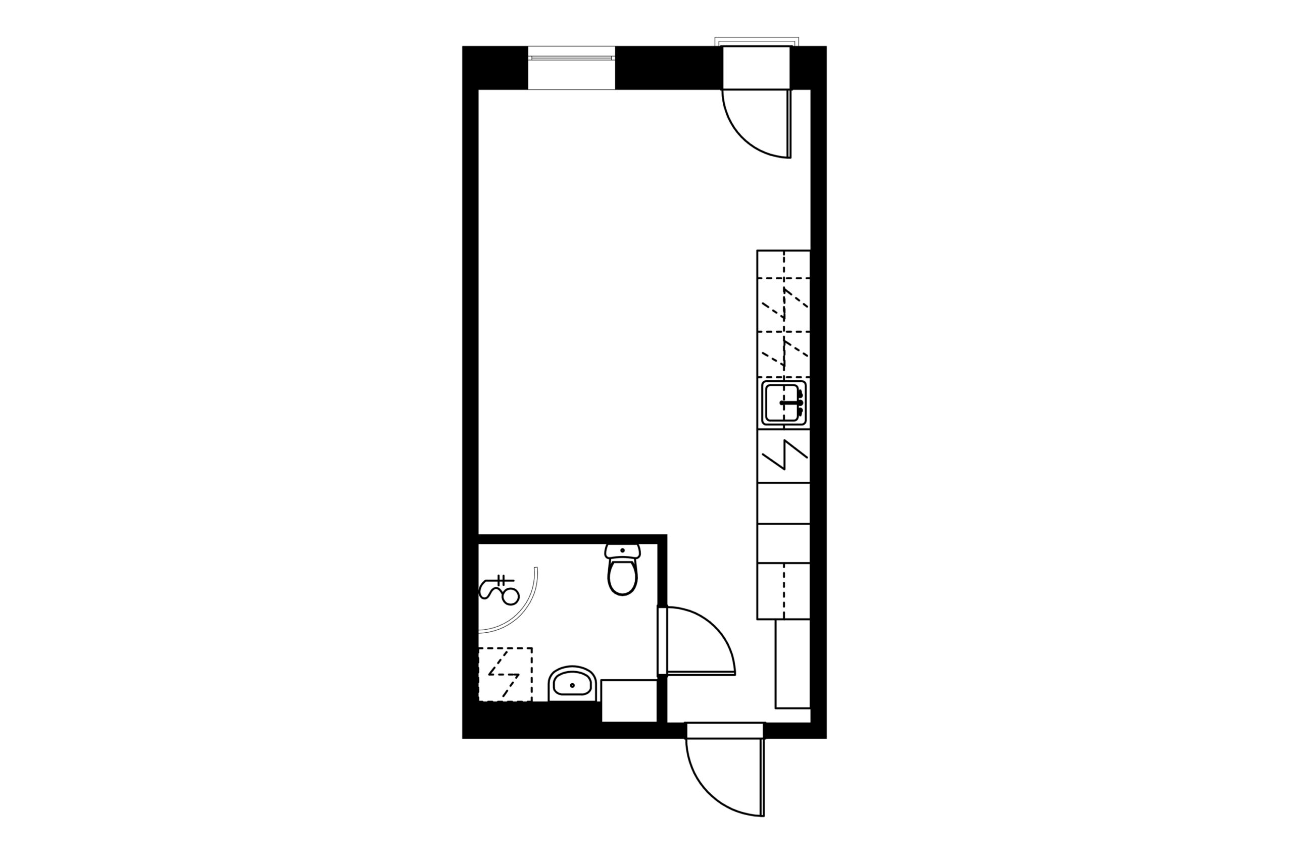
Asunto

Asunnon numero 44
Huoneistotyyppi 1h+kk
Pinta-ala 24,5 m²
Sijaintikerros 5
Varaustilanne Myyty

Hintatiedot

Myyntihinta 65 874 €
Lainaosuus 79 986 €
Velaton hinta 145 860 €

Autohallipaikka 27 000 €

Autotallipaikka 39 000 €

Ennakkomarkkinoinnilla tarkoitetaan suunnitteilla olevien asuntojen markkinointia. Ennakkomarkkinoinnin tarkoituksena on saada selville etukäteen ovatko suunnitteilla olevat asunnot kiinnostavia ja kohdistuuko niihin tarpeeksi kysyntää. Ennakkomarkkinoinnin aikana asuntoja markkinoidaan eri kanavissa, jolloin kiinnostuneet ostajaehdokkaat voivat tehdä heitä sitomattoman varaussopimuksen asunnoista.

Rakentamispäätös ennakkomarkkinoinnissa olevista asunnoista tehdään, kun asunnoista on varattu puolet.

Ennakkomarkkinoinnin aikana tulevista asunnoista ja taloyhtiöstä on usein saatavilla alustavat tiedot, kuten ennakkomarkkinointiesite, alustava hinnasto ja rakennustapaselostus. Ennakkomarkkinoinnin päättyessä, myynnin alkaessa, rakentamisen aikataulut ja muut tiedot vahvistetaan.

Ennakkomarkkinointi aloitetaan jo ennen kohteen liittämistä RS-järjestelmään. RS-järjestelmä on asunnon ostajan turvaksi luotu lakisääteinen järjestelmä, joka vahvistetaan ennen kohteen myyntivalmiutta.

Ennakkomarkkinoinnissa olevan asunnon voi varata useimmiten suoraan rakennuttajan myyntiorganisaation kautta tai rakennusliikkeen kanssa yhteistyötä tekevän kiinteistönvälittäjän kautta. Varausta tehtäessä asiakas maksaa asunnosta varausmaksun, joka saa olla enintään 4 % myyntihinnasta. Mikäli asiakas tulee toisiin ajatuksiin ja haluaa perua varauksen, varausraha palautetaan kokonaisuudessaan asiakkaan ilmoittamalle tilille.

Ennakkomarkkinoinnissa olevan asunnon varaus ei ole vielä sitova sopimus kaupasta vaan kaupasta voi vetäytyä ilman sanktioita. Lopullisen kauppakirjan sijaan varauksesta tehdään kirjallinen varaussopimus. Varauksen jälkeen, ennakkoon ilmoitettuna ajankohtana, sovitaan sitovan kaupan teosta ja ehdoista. Tällöin kohde on liitetty RS-järjestelmään ja rakentaminen alkaa. Tällöin varausmaksu lasketaan osaksi lopullista kauppahintaa.

Ennakkomarkkinoinnin alkaessa pääset varaamaan itsellesi juuri sinun tarpeisiisi sopivan asunnon. Useimmiten suosituilla alueilla ennakkomarkkinoinnin alkaessa käy kova kuhina, joten ajoissa olemalla varmistat itsellesi mieluisimman asunnon. Varaukset tehdään nopeusjärjestyksessä. Voit myös valita itsellesi varavaihtoehtoja tai jäädä jonottamaan tiettyä asuntoa, mikäli joku on jo ehtinyt tehdä suosikkiasuntoosi ensimmäisen varauksen.

Kannattaa myös kysyä rakennusliikkeeltä heidän asiakasrekisteistään ja niihin liittymisestä, sillä joskus uutiskirjeen tilaajat ja ennakkoon kiinnostuneiksi ilmoittautuneet saavat mahdollisuuden varata asunnon hieman aiemmin kuin muut.

Mikäli haluat perua varauksesi ennakkomarkkinoinnin aikana, on sinulla siihen täysi oikeus. Voit perua varauksen ilmoittamalla asiasta varauksen sinulle tehneelle henkilölle. Päätöstäsi ei tarvitse perustella myyjälle, jos et itse sitä halua.  Varauksen yhteydessä maksettu varausmaksu palautetaan kokonaisuudessaan asiakkaan tilille.

Kiinnostuitko asunnosta?

Jätä yhteystietosi alle ja olemme sinuun pikimmiten yhteydessä.